Продается однокомнатная квартира
Назарько 4, район Советский (Левенцовский мкр.)
12.12.2025






Стоимость
4 200 000 ₽
107 692 рублей за м2
107 692 рублей за м2
Количество комнат
1 комн
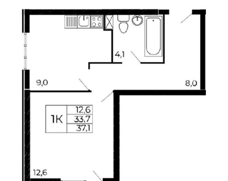
Общая площадь
39 м²
Этаж
2 из 20
Несуществующий объект, неправильная информация? - обязательно сообщите.
Дополнительная информация:
в продаже 1ккв стройвариант отличная планировка, с выделенным коридором, можно обыграть, в европейскую планировкувыполнена стяжкапоказ в удобное время, любой вид расчётазакрытая территория, детская площадка
в продаже 1ккв стройвариант отличная планировка, с выделенным коридором, можно обыграть, в европейскую планировкувыполнена стяжкапоказ в удобное время, любой вид расчётазакрытая территория, детская площадка
Похожие однокомнатные квартиры в районе Советский





