Продается однокомнатная квартира
Мелеузовская 15, район Калининский (Шакша мкр.)
04.04.2026










Стоимость
3 000 000 ₽
85 714 рублей за м2
85 714 рублей за м2
Количество комнат
1 комн
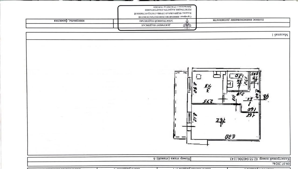
Общая площадь
35 м²
Этаж
6 из 9
Несуществующий объект, неправильная информация? - обязательно сообщите.
Дополнительная информация:
продаю светлую и очень уютную квартиру, в которую когдато влюбились с первого взгляда.это однокомнатная квартира, но она ощущается гораздо больше, чем ее метры. благодаря грамотной планировке, светлым стенам и большим окнам здесь всегда много воздуха и солнечного света. общая площадь 35,7 м² жилая комната 18,2 м² просторная, легко разместится и зона отдыха, и рабочее место кухня 7,9 м² удобная, здесь можно спокойно готовить и даже устроить маленькую столовую гордость квартиры большая лоджия, это полноценное дополнительное пространство. зимой там можно хранить всё необходимое, летом открывать окна и наслаждаться свежим воздухом.продаем с мебелью. не нужно думать, куда бежать с рулеткой и что докупать заезжайте и живите. всё работает, всё продумано, всё подобрано с заботой о комфорте.в доме есть лифт это огромное облегчение, особенно когда возвращаешься с покупками.санузел совмещенный, но удобно организован.дом 1991 года советской постройки, панельный.подъезд спокойный, соседи тихие, дом ухоженный. всё под рукой и город, и спокойствие. здесь есть всё, что нужно для обычной жизни, но при этом нет суеты.рядом школа идти буквально несколько минут детский сад удобно, если вы с маленькими детьми остановка общественного транспорта связь с городом отличнаямагазины, аптека, всё в шаговой доступности. при этом во дворе тихо можно спокойно гулять.я думаю, она идеально подойдет тем, кто ценит свое время и не хочет заниматься ремонтом тем, кто ищет уютное и светлое пространство для жизни вдвоем или одному тем, кто хочет переехать и сразу почувствовать себя дома.записывайтесь на просмотр, будем рады новому владельцу.
продаю светлую и очень уютную квартиру, в которую когдато влюбились с первого взгляда.это однокомнатная квартира, но она ощущается гораздо больше, чем ее метры. благодаря грамотной планировке, светлым стенам и большим окнам здесь всегда много воздуха и солнечного света. общая площадь 35,7 м² жилая комната 18,2 м² просторная, легко разместится и зона отдыха, и рабочее место кухня 7,9 м² удобная, здесь можно спокойно готовить и даже устроить маленькую столовую гордость квартиры большая лоджия, это полноценное дополнительное пространство. зимой там можно хранить всё необходимое, летом открывать окна и наслаждаться свежим воздухом.продаем с мебелью. не нужно думать, куда бежать с рулеткой и что докупать заезжайте и живите. всё работает, всё продумано, всё подобрано с заботой о комфорте.в доме есть лифт это огромное облегчение, особенно когда возвращаешься с покупками.санузел совмещенный, но удобно организован.дом 1991 года советской постройки, панельный.подъезд спокойный, соседи тихие, дом ухоженный. всё под рукой и город, и спокойствие. здесь есть всё, что нужно для обычной жизни, но при этом нет суеты.рядом школа идти буквально несколько минут детский сад удобно, если вы с маленькими детьми остановка общественного транспорта связь с городом отличнаямагазины, аптека, всё в шаговой доступности. при этом во дворе тихо можно спокойно гулять.я думаю, она идеально подойдет тем, кто ценит свое время и не хочет заниматься ремонтом тем, кто ищет уютное и светлое пространство для жизни вдвоем или одному тем, кто хочет переехать и сразу почувствовать себя дома.записывайтесь на просмотр, будем рады новому владельцу.
Похожие однокомнатные квартиры в районе Калининский





